Ga direct naar de hoofdinhoud
Lange Nieuwstraat 84 Utrecht
Lange Nieuwstraat 84 Utrecht
Home
Utrecht
History
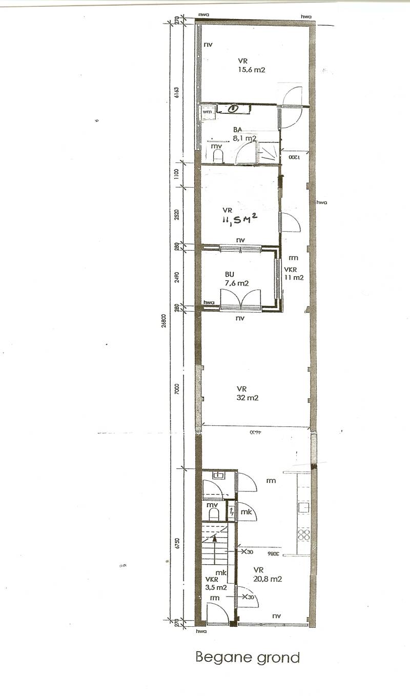
Floor Plan
Dining Room
Living
Kitchen
Bedrooms
Sanitary
Office
Loft
Patio
Various
Contact & Information
Floor Plan
Het bruto vloeroppervlak bedraagt ca. 130 m2.
Maak jouw eigen website met
JouwWeb
Maak jouw eigen website met JouwWeb